Drawings by Peter Turner
Architect, OAA, AANB, AAPEI, NSAA, AAA, AIBC, FRAIC, LEED AP, RPP, OPPI
Founding partner at Turner Fleischer Architects Inc.
This post is part of our summer 2018 blOAAg series, Summer Sketches: Capturing the Essence of Architectural Ideas.
We live in a world where everything is digital, however, sketching can still be an important part of the architectural design process. The fact that drawing is directly correlated to creative thought, allows ink and inspiration to develop into something more. Exploring the depth of an idea with pen and paper offers the opportunity to delve into free-flowing ideas and solutions to a design problem.
In the two sketches below, illustrating the podium for an unconstructed building at 401 Logan Ave in Toronto, the East and West Elevations and plans were hand drawn, then tinted with watercolour. This process allowed the client to visualize the effect his development would have on the street and community in a humanistic style. In this project, the textural quality of the watercolours, added above the line-work, enhanced the pleasant landscaping and the architectural qualities of the building.

Carbon paper drawings of 401 Logan Avenue with floor plans for East elevation (left) and West elevation (right).

Watercolours of 401 Logan Avenue with floor plans for East elevation (left) and West elevation (right).
As demonstrated in the example below, hand drawing techniques can be used to generate accurate views of a future building. Representing the completed Tawse Winery Estate in Vineland, Ontario, the comparison of the details in the pre-construction hand sketches and the final professional photography, reveals accuracy isn’t sacrificed in the hand rendering of a project.

Watercolours of the Tawse Winery that were presented to the client for approval.

Hand-sketched floor plan of the building and a photograph of the completed Tawse Winery.
On a larger scale, sketched 3D views can be used to bring an artistic and natural flair to a project that might otherwise be lost. Through this technique, the viewer can be more immersed in the ideas the Architect has of the future development.
Presented below is a proposal for a mixed-use recreation and residential resort for a 100-acre site in Port Carling, Ontario. This development included a waterfront area, tennis, golf communities, conference facilities and cottage-like residential condominium units. Although ultimately not completed, the natural setting of the site is expressed through the loose rendering style, indicative of the location.

Two mounted panels of the sketches done for the Royal Rosseau proposal.

Hand-sketched and coloured floor plan of the Royal Rosseau mixed-use recreational and residential resort.
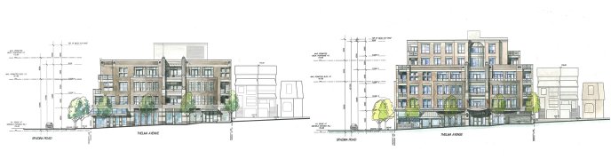
When appropriate, at Turner Fleischer, we attempt to merge modern and traditional techniques to tell the best story of our projects. An example of this approach is reflected in the computer-generated drawings below that were enhanced by the quick application of watercolour to elevate the site plans and enhance the drawings. This project on Thelma Avenue in Toronto, was rendered this way to highlight the subtle details that characterize the site in an approachable manner.

Watercoloured CAD drawings of Thelma Avenue project. First (left) & second (right) applications to the Design Review Panel.

Watercoloured CAD drawings of the same project. First (left) and second (right) DRP submissions.
Text by Florian Caffier, Communications & Marketing, Turner Fleischer Architects Inc.